
In zona industriale a Paliano, ben visibile dall'autostrada, facilmente accessibile sia dal casello Anagni - Fiuggi ( a 8 minuti) che dal casello Colleferro ( a 11 minuti) proponiamo in Vendita Capannone industriale di 8.775 Mq con 14.500 Mq di area scoperta.
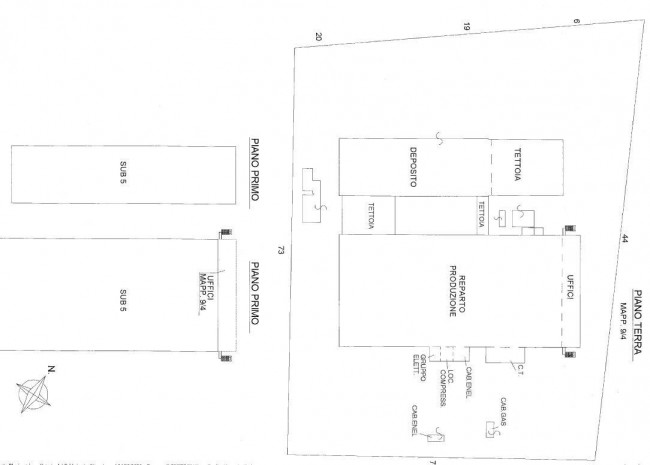
Il Capannone, attualmente produttivo, si compone di officina di cui la prima parte con altezza di 5,5 m e la seconda parte con un'altezza di 8 m e più gru a ponte monotrave.
Sono presenti anche uffici, aree per il personale e mensa, questi ultimi disposti su due livelli.
Dotato di pesa a ponte.
Contattaci subito allo 0825789374 oppure al 351 249 4541 per fissare un appuntamento!
Oppure, se preferisci, vieni a trovarci in agenzia: siamo in via Ramiro Marcone 24, Mercogliano.
Ti aspettiamo

8.775 mq